• TOP
  • 検索一覧
  • 物件詳細

売買物件検索

お問い合わせMYリストに追加検索結果一覧に戻る

じょい下鴨/マンション

物件概要

物件ID B14626
販売価格 3,590万円(税込)
所在地 京都市左京区下鴨高木町
交通 地下鉄烏丸線 松ヶ崎駅 徒歩約11分
叡山電鉄本線 茶山・京都芸術大学駅 徒歩約15分
土地 土地:公簿 - / 0坪

物件詳細

構造・規模 鉄骨鉄筋コンクリート造 地上9階  地下1階建 8階部分 築年月 1975年01月
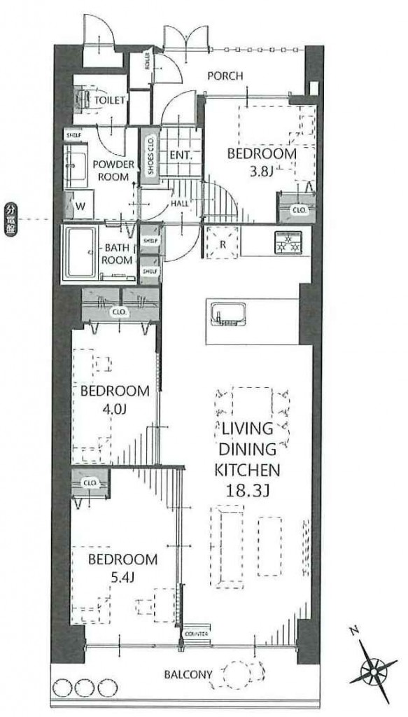
間取り 3LDK 取引態様 仲介
駐車場 土地権利 所有権
バルコニー面積 6.18m2 バルコニー方向 南西
管理費 11,770円 修繕積立金 18,800円
専有面積 壁芯 76.02m2 持分割合 -
建ぺい率 - 容積率 -
現況 空家 引渡し 即時
施工会社 株式会社 熊谷組  分譲会社 株式会社 丸井
設備 システムキッチン/エレベータ/食器洗浄機
備考 -

周辺環境

お問い合わせMYリストに追加検索結果一覧に戻る
  • ※「ローン返済早見表」は試算であり、実際には購入物件や金融機関の諸条件により借り入れの可否、年数、適用金利等が変わりますので、あくまでも目安としてご利用ください。
  • ※「ローン返済早見表」の数値は、融資の予約や審査などを、お約束するものではありませんのでご了承下さい。

近似物件

  • 売買中古戸建

    下鴨中川原町

    3,500万円

    地下鉄烏丸線 北大路 徒歩約15分

  • 売買売地

    岩倉木野町

    3,500万円

    叡電鞍馬線 木野 徒歩約2分

  • 売買中古戸建

    鹿ケ谷桜谷町

    3,580万円

    京阪本線 出町柳 市バス 錦林車庫前 (乗車約9分) 徒歩約5分

  • 売買中古戸建

    岩倉幡枝町

    3,780万円

    叡電鞍馬線 京都精華大前 徒歩約7分