JR・地下鉄「京都」駅徒歩圏内の風情ある京町家ガーデニングや家庭菜園のできる広々とした庭付2018年2月 キッチン・洗面台入替
| 家賃 | 20.0万円 管理費:- |
|---|---|
| 敷金/礼金 | 敷金(保証金):1ヶ月 礼金(解約引):1ヶ月 |
| 所在地 | 【下京区】 京都市下京区新町通七条上る辰巳町 |
| 交通 | 東海道・山陽本線 京都駅 徒歩約7分 京都地下鉄烏丸線 京都駅 徒歩約8分 |
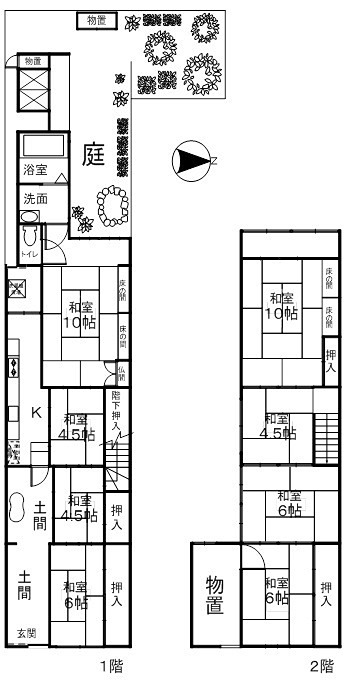
| 間取り | 8K | ||
|---|---|---|---|
| 契約期間 | 5年 定借 | 更新料 | - |
| 使用部分面積 | 167m2 | バルコニー向き | 西 |
| 構造・規模 | 木造 地上2階建 | 築年月 | 1900年01月 |
| 総戸数 | - | 現況 | 空家 |
| 駐車場 | 無 | 駐車場月額 | - |
| 入居日 | 即時 | 取引態様 | 専任 |
| 設備 | 公営水道/ガス(都市)/下水道/バス・トイレ別/給湯/追い焚き風呂/専用庭/楽器相談不可/事務所不可/ペット不可/定期借家権付/保証人要 |
|---|---|
| 保証会社 | ※連帯保証人必須・連帯保証人に加え、保証会社への加入をお願いする場合がございます。 |
| 備考 | 定期賃貸借契約(5年)築不詳事業用・宿泊施設は不可貸主にて年1回庭木の剪定有※エアコン・ウォシュレット・照明器具・台所瞬間湯沸器は残置物 |