聖護院エリアの京町家物件事務所使用相談可ペット飼育相談可(猫・犬〈中型犬まで〉合計2匹まで)
| 家賃 | 11.0万円 管理費:- |
|---|---|
| 敷金/礼金 | 敷金(保証金):1ヶ月 礼金(解約引):1ヶ月 |
| 所在地 | 【左京区】 京都市左京区聖護院中町 |
| 交通 | 京阪本線 神宮丸太町駅 徒歩約13分 |
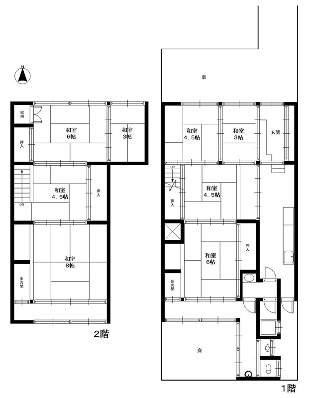
| 間取り | 8K | ||
|---|---|---|---|
| 契約期間 | 3年 定借 | 更新料 | - |
| 使用部分面積 | 137.18m2 | バルコニー向き | 南 |
| 構造・規模 | 木造 地上2階建 | 築年月 | 1900年01月 |
| 総戸数 | - | 現況 | 空家 |
| 駐車場 | 無 | 駐車場月額 | - |
| 入居日 | 期日指定 2026年02月中旬 | 取引態様 | 専任 |
| 設備 | 公営水道/ガス(都市)/下水道/バス・トイレ別/給湯/楽器相談不可/定期借家権付/保証人要 |
|---|---|
| 保証会社 | 必須 全保連 初回のみプラン:月額賃料120%毎年プラン:月額賃料50%・年間13,000円 |
| 備考 | 定期賃貸借契約(3年)築不詳ペット飼育の場合は敷金・礼金それぞれ賃料1ヶ月分アップ |