新築、環境の良い立地、ご希望の方は隣接の家庭菜園も利用可能
| 家賃 | 18.0万円 管理費:- |
|---|---|
| 敷金/礼金 | 敷金(保証金):18万円 礼金(解約引):18万円 |
| 所在地 | 【左京区】 京都市左京区一乗寺門口町7 |
| 交通 | 叡山電鉄本線 一乗寺駅 徒歩約10分 |
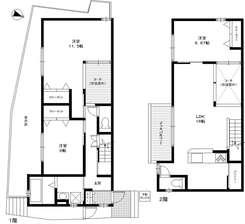
| 間取り | 3LDK | ||
|---|---|---|---|
| 契約期間 | 2年 | 更新料 | 1ヶ月 |
| 使用部分面積 | 97.26m2 | バルコニー向き | 南 |
| 構造・規模 | 木造 地上2階建 | 築年月 | 2026年03月 |
| 総戸数 | - | 現況 | 建築中 |
| 駐車場 | 空有 | 駐車場月額 | 10,000円 |
| 入居日 | 相談 | 取引態様 | 専任 |
| 設備 | 公営水道/ガス(都市)/下水道/バス・トイレ別/システムキッチン/給湯/室内洗濯機置場/専用庭/バルコニー/フローリング/宅配ボックス/TVモニターホン/シャワートイレ/浴室乾燥機/食器洗浄機/ペット不可/保証人要 |
|---|---|
| 保証会社 | ※連帯保証人必須・連帯保証人に加え、保証会社への加入をお願いする場合がございます。 |
| 備考 | 退去時ハウスクリーニング代要車庫証明発行料:5,500円(税込)/回 |