岩倉の閑静な住宅街南向き、日当り良好、駐車2台可
| 家賃 | 16.0万円 管理費:- |
|---|---|
| 敷金/礼金 | 敷金(保証金):16万円 礼金(解約引):16万円 |
| 所在地 | 【左京区】 京都市左京区岩倉下在地町 |
| 交通 | 京都地下鉄烏丸線 国際会館駅 徒歩約15分 叡山電鉄鞍馬線 岩倉駅 徒歩約4分 |
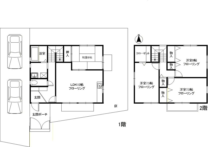
| 間取り | 4LDK | ||
|---|---|---|---|
| 契約期間 | 2年 | 更新料 | 1ヶ月 |
| 使用部分面積 | 106.08m2 | バルコニー向き | 南 |
| 構造・規模 | 軽量鉄骨 地上2階建 | 築年月 | 2000年08月 |
| 総戸数 | - | 現況 | 空家 |
| 駐車場 | 空有 | 駐車場月額 | - |
| 入居日 | 相談 | 取引態様 | 専任 |
| 設備 | 公営水道/ガス(都市)/下水道/バス・トイレ別/ガスコンロ付き/三口コンロ/システムキッチン/給湯/追い焚き風呂/W.INクローゼット/室内洗濯機置場/専用庭/フローリング/シャワートイレ/楽器相談不可/事務所不可/ペット不可/保証人要 |
|---|---|
| 保証会社 | ※連帯保証人必須・連帯保証人に加え、保証会社への加入をお願いする場合がございます。 |
| 備考 | - |