[2025/12/14 21:37] Warning Error. on line 159 岩倉幡枝町 | 一戸建て | 狩野コーポレーションKANOH倶楽部

一戸建て myリストに追加


販売価格 2,849万円(税込)

  • メールお問い合わせ
  • お電話
  • MYリスト追加

物件詳細

物件ID B13906
所在地 京都市左京区岩倉幡枝町
交通 叡電鞍馬線 京都精華大前駅 徒歩約8分
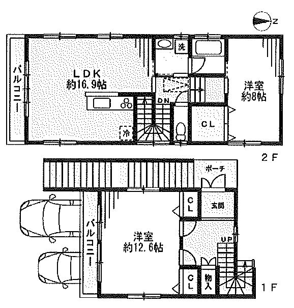
間取 2LDK
構造・規模 木造 地上2階建
築年月 平成24年07月
駐車場
土地権利 所有権
地目 -
用途地域 第一種低層住居専用地域
建ぺい率 -
容積率 -
現況 空家
引渡し 即時
取引態様 仲介
設備 -
備考 ※本物件地積355.80平米のうち土地北側の一部約116.78平米が法地となっており、本物件土地の建築確認敷地面積は約239.02平米となります。

周辺環境

  • メールお問い合わせ
  • お電話
  • MYリスト追加

ローン早見表

ローンシミュレータ ※「ローン返済早見表」は試算であり、実際には購入物件や金融機関の諸条件により借り入れの可否、年数、適用金利等が変わりますので、あくまでも目安としてご利用ください。 ※「ローン返済早見表」の数値は、融資の予約や審査などを、お約束するものではありませんのでご了承下さい。

近似物件

  • 商談中

    下鴨蓼倉町/中古戸建

    京都市左京区下鴨蓼倉町

    2,790万円

    京阪本線 出町柳 徒歩約19分

    詳細を見る

  • 岩倉木野町/売地

    京都市左京区岩倉木野町

    2,800万円

    叡電鞍馬線 木野 徒歩約1分

    詳細を見る

  • NEW

    浄土寺上南田町/売地

    京都市左京区浄土寺上南田町

    2,980万円

    詳細を見る

  • NEW

    岩倉花園町/中古戸建

    京都市左京区岩倉花園町

    3,080万円

    叡電鞍馬線 八幡前 徒歩約7分

    詳細を見る

閲覧履歴