[2025/12/14 21:37] Warning Error. on line 159 浄土寺上馬場町 | 事業用 | 狩野コーポレーションKANOH倶楽部

事業用 myリストに追加


販売価格 7,150万円(非課税)

  • メールお問い合わせ
  • お電話
  • MYリスト追加

物件詳細

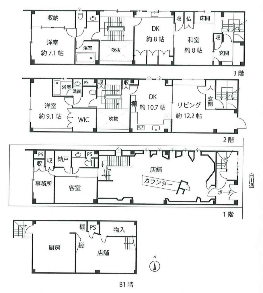
物件ID B14467
所在地 京都市左京区浄土寺上馬場町
交通
構造・規模 鉄骨造 地上3階  地下1階建
築年月 昭和63年10月
間取 -
取引態様 仲介
駐車場
土地権利 所有権
バルコニー面積 -
バルコニー方向 -
管理費 -
修繕積立金 -
専有面積 壁芯 -
持分割合 -
建ぺい率 50%
容積率 80%
現況 空家
引渡し 即時
施工会社 -
分譲会社 -
設備 -
備考 ※本物件は現状有姿での取引とします。※建物は老朽化が進んでいるため、使用に際しては修繕が必要です。

周辺環境

  • メールお問い合わせ
  • お電話
  • MYリスト追加

ローン早見表

ローンシミュレータ ※「ローン返済早見表」は試算であり、実際には購入物件や金融機関の諸条件により借り入れの可否、年数、適用金利等が変わりますので、あくまでも目安としてご利用ください。 ※「ローン返済早見表」の数値は、融資の予約や審査などを、お約束するものではありませんのでご了承下さい。

近似物件

  • 浄土寺下南田町/新築戸建

    京都市左京区浄土寺下南田町

    6,580万円

    詳細を見る

閲覧履歴