[2025/12/14 21:37] Warning Error. on line 159 岩倉幡枝町 | 一戸建て | 狩野コーポレーションKANOH倶楽部

一戸建て myリストに追加


販売価格 3,280万円(非課税)

  • メールお問い合わせ
  • お電話
  • MYリスト追加

物件詳細

物件ID B14570
所在地 京都市左京区岩倉幡枝町
交通 叡電鞍馬線 京都精華大前駅 徒歩約9分
叡電鞍馬線 木野駅 徒歩約7分
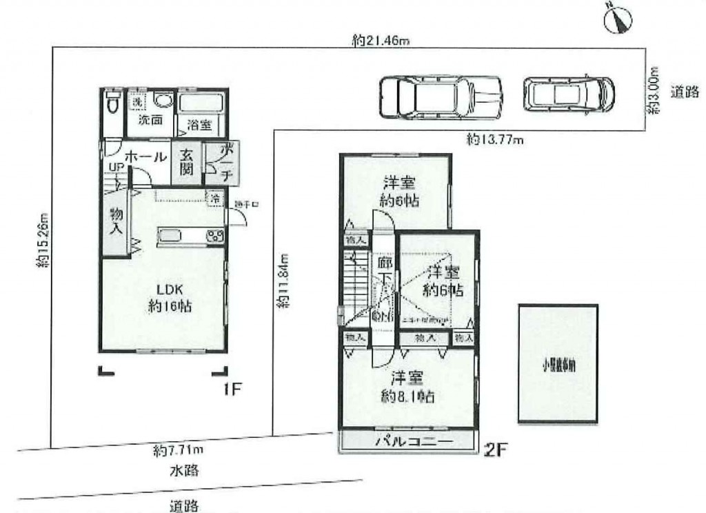
間取 3LDK +屋根裏収納
構造・規模 木造 地上2階建
築年月 平成23年08月
駐車場
土地権利 所有権
地目 宅地
用途地域 第一種低層住居専用地域
建ぺい率 40%
容積率 60%
現況 居住中
引渡し 相談
取引態様 仲介
設備 -
備考 ※2024年7月トイレリフォーム、インプラス(内窓)取付工事

周辺環境

  • メールお問い合わせ
  • お電話
  • MYリスト追加

ローン早見表

ローンシミュレータ ※「ローン返済早見表」は試算であり、実際には購入物件や金融機関の諸条件により借り入れの可否、年数、適用金利等が変わりますので、あくまでも目安としてご利用ください。 ※「ローン返済早見表」の数値は、融資の予約や審査などを、お約束するものではありませんのでご了承下さい。

近似物件

  • NEW

    浄土寺上南田町/売地

    京都市左京区浄土寺上南田町

    2,980万円

    詳細を見る

  • NEW

    岩倉花園町/中古戸建

    京都市左京区岩倉花園町

    3,080万円

    叡電鞍馬線 八幡前 徒歩約7分

    詳細を見る

  • 小山東玄以町/売地

    京都市北区小山東玄以町

    3,300万円

    地下鉄烏丸線 北大路 徒歩約13分

    詳細を見る

  • 下鴨中川原町/中古戸建

    京都市左京区下鴨中川原町

    3,500万円

    地下鉄烏丸線 北大路 徒歩約15分

    詳細を見る

  • 鹿ケ谷桜谷町/中古戸建

    京都市左京区鹿ヶ谷桜谷町

    3,580万円

    京阪本線 出町柳 市バス 錦林車庫前 (乗車約9分) 徒歩約5分

    詳細を見る

閲覧履歴