[2025/12/14 21:37] Warning Error. on line 159 小山北大野町 | 一戸建て | 狩野コーポレーションKANOH倶楽部

一戸建て myリストに追加


販売価格 6,300万円(非課税)

  • メールお問い合わせ
  • お電話
  • MYリスト追加

物件詳細

物件ID B14596
所在地 京都市北区小山北大野町
交通 地下鉄烏丸線 北大路駅 徒歩約5分
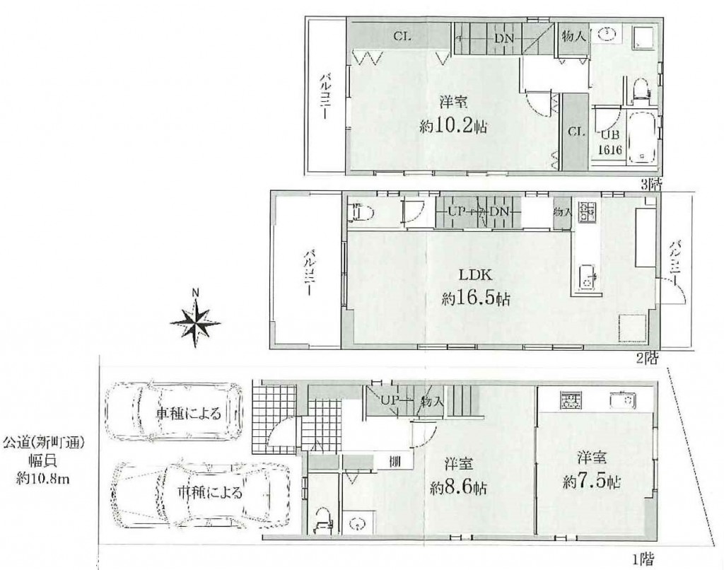
間取 3LDK
構造・規模 木造 地上3階建
築年月 平成22年11月
駐車場
土地権利 所有権
地目 宅地
用途地域 近隣商業地域
建ぺい率 80%
容積率 200%
現況 空家
引渡し 相談
取引態様 仲介
設備 -
備考 -

周辺環境

  • メールお問い合わせ
  • お電話
  • MYリスト追加

ローン早見表

ローンシミュレータ ※「ローン返済早見表」は試算であり、実際には購入物件や金融機関の諸条件により借り入れの可否、年数、適用金利等が変わりますので、あくまでも目安としてご利用ください。 ※「ローン返済早見表」の数値は、融資の予約や審査などを、お約束するものではありませんのでご了承下さい。

近似物件

閲覧履歴