[2026/04/02 10:18] Warning Error. on line 158 吉田神楽岡町 | 一戸建て | 狩野コーポレーションKANOH倶楽部

一戸建て myリストに追加


販売価格 11,700万円(非課税)

  • メールお問い合わせ
  • お電話
  • MYリスト追加

物件詳細

物件ID B14727
所在地 京都市左京区吉田神楽岡町
交通 叡山電鉄本線 出町柳駅 徒歩約24分
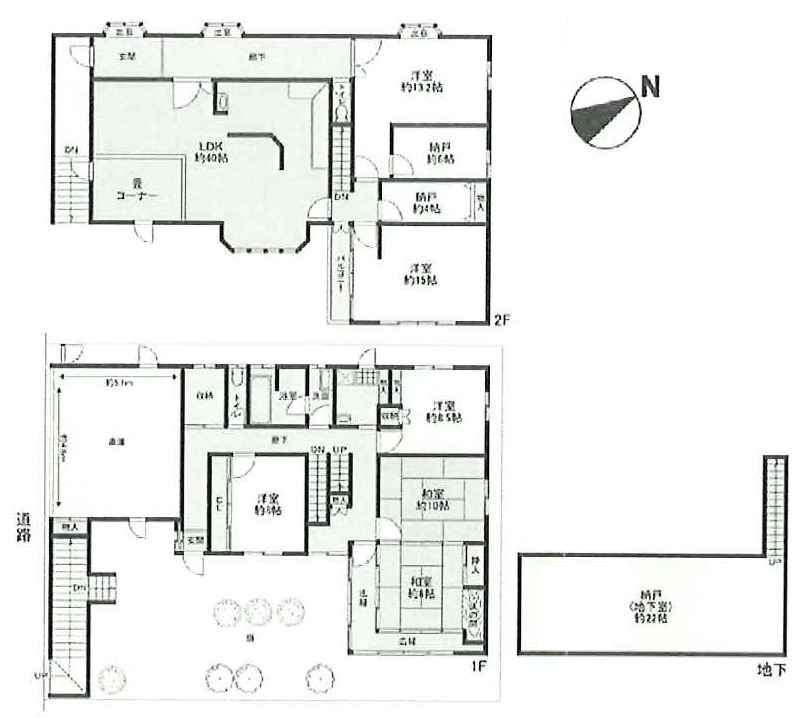
間取 6SLDK
構造・規模 木造 地上2階建
築年月 昭和44年11月
駐車場
土地権利 所有権
地目 宅地
用途地域 第一種低層住居専用地域
建ぺい率 40%
容積率 100%
現況 空家
引渡し 相談
取引態様 仲介
設備 -
備考 ※私道面積(共有持分):1014.00平米(1/7) ※別途、増築未登記部分あり ※私道使用料:30000円/年

周辺環境

  • メールお問い合わせ
  • お電話
  • MYリスト追加

ローン早見表

ローンシミュレータ ※「ローン返済早見表」は試算であり、実際には購入物件や金融機関の諸条件により借り入れの可否、年数、適用金利等が変わりますので、あくまでも目安としてご利用ください。 ※「ローン返済早見表」の数値は、融資の予約や審査などを、お約束するものではありませんのでご了承下さい。

近似物件

  • 杉屋町/売地

    京都市中京区堺町通二条下る杉屋町

    11,180万円

    地下鉄烏丸線 烏丸御池 徒歩約7分

    詳細を見る

  • NEW

    下鴨本町/売地

    京都市左京区下鴨本町

    12,320万円

    地下鉄烏丸線 松ヶ崎 徒歩約16分

    詳細を見る

閲覧履歴