[2026/04/02 10:18] Warning Error. on line 158 浄土寺下馬場町 | 一戸建て | 狩野コーポレーションKANOH倶楽部

一戸建て myリストに追加


販売価格 2,080万円(非課税)

  • メールお問い合わせ
  • お電話
  • MYリスト追加

物件詳細

物件ID B14767
所在地 京都市左京区浄土寺下馬場町
交通
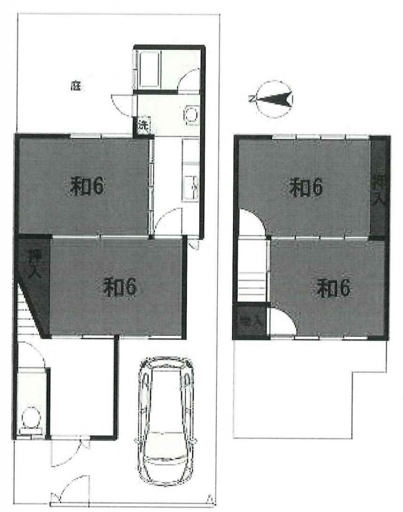
間取 4K
構造・規模 木造 地上2階建
築年月 昭和45年06月
駐車場
土地権利 所有権
地目 宅地
用途地域 第一種低層住居専用地域
建ぺい率 60%
容積率 100%
現況 空家
引渡し 相談
取引態様 仲介
設備 -
備考 ※現状有姿取引 ※契約不適合責任免責

周辺環境

  • メールお問い合わせ
  • お電話
  • MYリスト追加

ローン早見表

ローンシミュレータ ※「ローン返済早見表」は試算であり、実際には購入物件や金融機関の諸条件により借り入れの可否、年数、適用金利等が変わりますので、あくまでも目安としてご利用ください。 ※「ローン返済早見表」の数値は、融資の予約や審査などを、お約束するものではありませんのでご了承下さい。

近似物件

閲覧履歴