京都セレーナ2番館 myリストに追加


商談中

販売価格 7,500万円(税込)

  • メールお問い合わせ
  • お電話
  • MYリスト追加

物件詳細

物件ID B14512 商談中
所在地 京都市北区紫野西御所田町
交通 地下鉄烏丸線 北大路駅 徒歩約10分
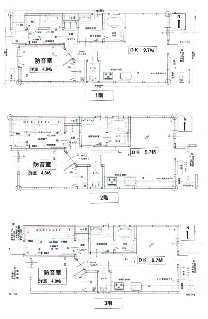
土地/建物 土地:公簿 58.47m2 / 17.68坪 / 建物:133.6m2
構造・規模 木造 地上3階建
築年月 2025年11月予定
間取 -
取引態様 仲介
駐車場
土地権利 所有権
バルコニー面積 -
バルコニー方向 -
管理費 -
修繕積立金 -
専有面積 壁芯 -
持分割合 -
建ぺい率 80%
容積率 300%
現況 未完成
引渡し 相談
施工会社 -
分譲会社 -
設備 ガス(都市)/システムキッチン/オートロック/宅配ボックス/食器洗浄機/浴室乾燥機/電気
備考 ※耐震等級3級 ※劣化等級3級

周辺環境

  • メールお問い合わせ
  • お電話
  • MYリスト追加

ローン早見表

ローンシミュレータ ※「ローン返済早見表」は試算であり、実際には購入物件や金融機関の諸条件により借り入れの可否、年数、適用金利等が変わりますので、あくまでも目安としてご利用ください。 ※「ローン返済早見表」の数値は、融資の予約や審査などを、お約束するものではありませんのでご了承下さい。

閲覧履歴

  • 商談中

    京都セレーナ2番館/収益用マンション

    京都市北区紫野西御所田町

    7,500万円

    地下鉄烏丸線 北大路 徒歩約10分

    詳細を見る

  • 銀閣寺前町/売地

    京都市左京区銀閣寺前町

    4,200万円

    叡山電鉄本線 元田中 徒歩約22分

    詳細を見る

  • NEW

    富田町/中古戸建

    京都市下京区富田町

    6,180万円

    地下鉄烏丸線 五条 徒歩約5分

    詳細を見る