下鴨本通に面した一棟テナント物件物販・事務所・教室など業種はご相談下さい(重飲食は不可)
| 家賃 | 19.8万円 管理費:- |
|---|---|
| 敷金/礼金 | 敷金(保証金):(5ヶ月) 礼金(解約引):- |
| 所在地 | 【左京区】 京都市左京区下鴨北園町11-4 |
| 交通 | 京都地下鉄烏丸線 北山駅 徒歩約9分 |
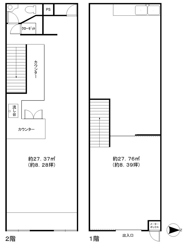
| 間取り | - | ||
|---|---|---|---|
| 契約期間 | 2年 | 更新料 | - |
| 使用部分面積 | 55.13m2 | バルコニー向き | - |
| 構造・規模 | 木造 地上2階建 2階部分 | 築年月 | 1978年01月 |
| 総戸数 | 1戸 | 現況 | 入居中 |
| 駐車場 | 無 | 駐車場月額 | - |
| 入居日 | 相談 | 取引態様 | 専任 |
| 設備 | 公営水道/ガス(都市)/下水道/事務所可/保証人要 |
|---|---|
| 保証会社 | 必須 【4C’S】初回保証委託料:100%・年間保証委託料:滞納履歴による |
| 備考 | 自動更新用途地域:第二種中高層住居専用地域接道状況:東側 下鴨本通に面す広告物規制:屋外広告物規制沿道型第1種地域貸主インボイス未登録 |